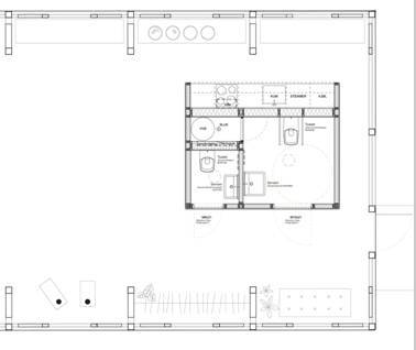
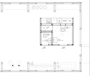
Innredninger i Nybygget på Teigen


Fagfolk og arkitekter samlet til planlegging av tekniske installasjoner –

strøm, vann, kjøkken, toaletter, garderobe og peis/ovn i Nybygget på Teigen.